След масовото нашествие на моловете, в които градският човек може да намери всичко необходимо, все още се запазва тенденцията инвеститорите да обособяват търговски площи в жилищните комплекси. В тях подобно на някогашните квартални магазинчета лесно и бързо можеш да намериш най-важните стоки в забързаното ежедневие.
Именно поради това инвестицията в търговски обекти, разположени в жилищни зони, отново се събужда. Единственият и най-важен фактор в случая е безспорно локацията. Погрешно се счита, че центърът и моловете са гаранция за голям поток клиенти и респективно – успех на бизнеса. Не съвсем така, става ясно от тенденциите.
От ключово значение е пътникопотокът, който минава непосредствено около и в района на търговския обект, както и близостта с възлови транспортни точки.
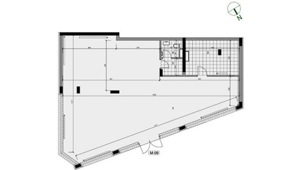
Когато магазинът е част от голям жилищен комплекс, това е допълнителен плюс, защото гарантира постоянни клиенти. Такъв пример за успешно внедрени търговски площи в жилищната среда е „Резиденшъл Младост“ - комплекс от затворен тип, който се разпростира върху площ от 5700 кв. м и е разположен в най-благоустроения район на ж.к. „Младост“.
„Резиденшъл Младост“ разполага с 9 магазина с директен достъп от две централни улици и е на ключово кръстовище, което отвежда до бул. „Александър Малинов“ и е важна артерия към бизнес центровете в района. В близост има множество жилищни сгради, голяма част от които са ново строителство с основни жители млади семейства.
Това превръща района в потенциален локален търговски център, който ще привлича посетители и от съседните микрорайони.
Налични за продажба и отдаване под наем са три магазина с площ от 174 до 186 кв. м. Локацията на комплекса осигурява достъп до бърз и ефективен транспорт - на 2 минути от метростанция „Младост 3" и на 5 минути от спирките на автобусни линии, водещи към центъра на града.
Допълнителен плюс е, че „Резиденшъл Младост“ се намира на 10 минути и от Бизнес парк София.


Какво казаха политиците за оставката на кабинета
България няма право да ремонтира танкер "Кайрос"
Росен Желязков депозира оставката на Министерския съвет
Варненският апелативен съд потвърди гаранцията Коцев от 200 000 лв.
Зъболекарят стана лукс: Почти двойно поскъпване на стоматологичните услуги у нас
Chevron: IEA най-после признаха това, което повтаряме отдавна
Манията около AI узрява, инвеститорите започват да задават важните въпроси
Chevron: Венецуела има повече петрол и газ от Саудитска Арабия
Chevron: Със стандартизация намалихме разходите
Chevron: AI е на ранен етап на навлизане в индустрията
Самолет кацна върху автомобил на магистрала
Европа се опита да спре китайците, но в крайна сметка им помогна
Ето го новия най-евтин седан на Nissan
Индустрията навлиза в нова ера на еднакви модели от водещи марки
Нов проблем пред електромобилите – цените на кобалта са скочили със 100%
Борисов с първи думи: За да не ни заличат, настоях за тази оставка днес НА ЖИВО
Асен Василев: Предстои трудна задача - България да стане държава
Пеевски: Цялата отговорност сега е на коалицията "Сорос" - ПП-ДБ